Description
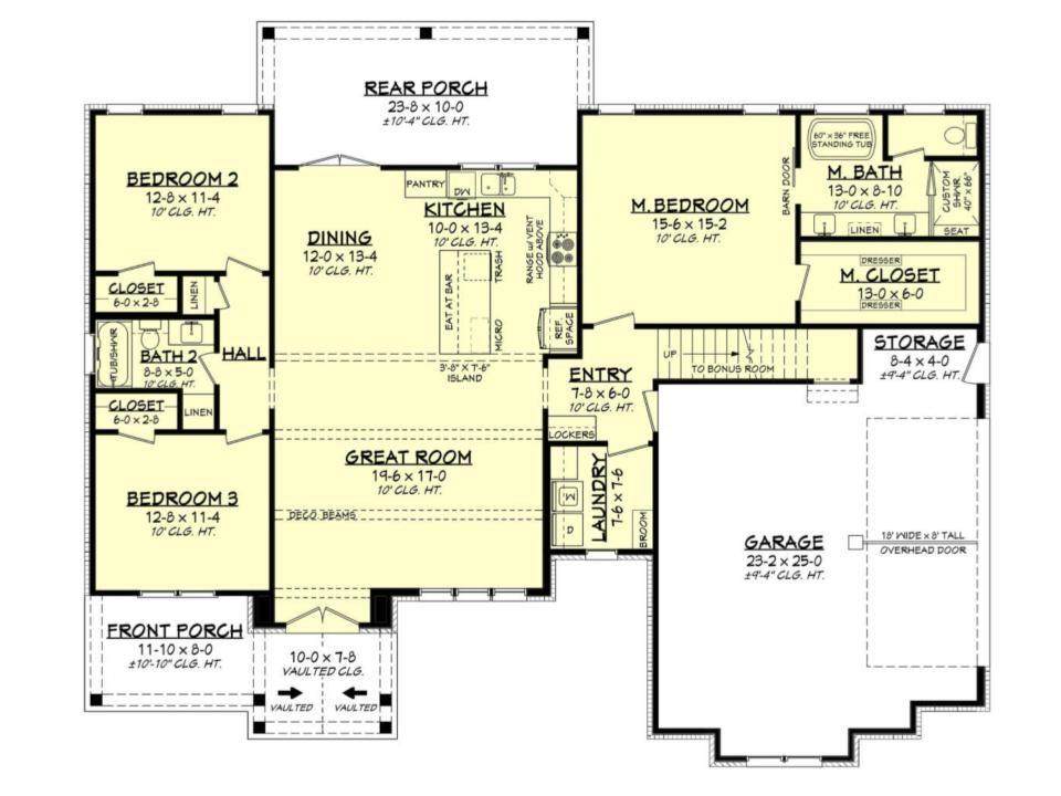
Coming Soon! Impressive luxury modern farmhouse situated on 2 acres in Edgewood. Premier lot with trees!Large living room with vaulted beamed ceiling and open floor plan. Split bedrooms with primary suite separate from secondary bedrooms. Primary suite with dual vanities, separate bath and shower and more! Kitchen with large island with gorgeous quartz countertops. Highly desirable finish out planned, gorgeous beamed ceilings, cedar accents, modern fixtures, built ins and much, MUCH more! Large covered porches and impressive curb appeal! Edgewood ISD. Access to highways for commutes via HWY 80, and more! For more information reach out! NO HOA! NO MUD and NO PID. Plans features optional upstairs bonus room with full bath, flexible space for secondary living or 4th bedroom. Schedule appointment to view plans, design, etc with sales office.
-
3BEDS
-
2ACRES
-
2BATHS
-
01/2 BATHS
-
1,794SQFT
-
$269$/SQFT
School Information
Description
Coming Soon! Impressive luxury modern farmhouse situated on 2 acres in Edgewood. Premier lot with trees!Large living room with vaulted beamed ceiling and open floor plan. Split bedrooms with primary suite separate from secondary bedrooms. Primary suite with dual vanities, separate bath and shower and more! Kitchen with large island with gorgeous quartz countertops. Highly desirable finish out planned, gorgeous beamed ceilings, cedar accents, modern fixtures, built ins and much, MUCH more! Large covered porches and impressive curb appeal! Edgewood ISD. Access to highways for commutes via HWY 80, and more! For more information reach out! NO HOA! NO MUD and NO PID. Plans features optional upstairs bonus room with full bath, flexible space for secondary living or 4th bedroom. Schedule appointment to view plans, design, etc with sales office.
© 2026 North Texas Real Estate Information Systems. All rights reserved. IDX information is provided exclusively for consumers' personal, non-commercial use and may not be used for any purpose other than to identify prospective properties consumers may be interested in purchasing. Information is deemed reliable but is not guaranteed accurate by the MLS or ACR- ANN CARR REALTORS®. The data relating to real estate for sale or lease on this web site comes in part from NTREIS. Real estate listings held by brokerage firms other than ACR- ANN CARR REALTORS® are marked with the NTREIS logo or an abbreviated logo and detailed information about them includes the name of the listing broker. Data last updated 2026-03-09T20:44:21.21.

Listing information © 2026 North Texas Real Estate Information System.