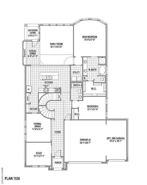
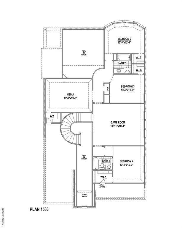
Description
Customer favorite design with 5 bedrooms, 4 full baths, 2 dining areas, study, game room, media room and 3-car garage on a oversized lot. The 2-story foyer opens to the study and formal dining room on one side with the laundry room and garage on the opposite side. A curved staircase leads you to the second floor game room and media room. 2 bedrooms down and the upstairs secondary bedrooms each include a walk-in closet and one includes an en-suite bathroom. On the first floor, when entering the L-shaped kitchen, your breath will be taken away by the abundance of cabinets and seamless open-concept layout. The casual dining space includes a window seat and leads to the covered outdoor living area. A corner fireplace is the centerpiece of the luxurious family room. The main bedroom is complete with a huge walk-in closet connected to the laundry room and a bay window. This floor plan also includes options to make this home unique for your family. Available Feb 2026!
-
5BEDS
-
0.16ACRES
-
4BATHS
-
01/2 BATHS
-
3,775SQFT
-
$168$/SQFT
School Information
Description
Customer favorite design with 5 bedrooms, 4 full baths, 2 dining areas, study, game room, media room and 3-car garage on a oversized lot. The 2-story foyer opens to the study and formal dining room on one side with the laundry room and garage on the opposite side. A curved staircase leads you to the second floor game room and media room. 2 bedrooms down and the upstairs secondary bedrooms each include a walk-in closet and one includes an en-suite bathroom. On the first floor, when entering the L-shaped kitchen, your breath will be taken away by the abundance of cabinets and seamless open-concept layout. The casual dining space includes a window seat and leads to the covered outdoor living area. A corner fireplace is the centerpiece of the luxurious family room. The main bedroom is complete with a huge walk-in closet connected to the laundry room and a bay window. This floor plan also includes options to make this home unique for your family. Available Feb 2026!
Related Properties
© 2026 North Texas Real Estate Information Systems. All rights reserved. IDX information is provided exclusively for consumers' personal, non-commercial use and may not be used for any purpose other than to identify prospective properties consumers may be interested in purchasing. Information is deemed reliable but is not guaranteed accurate by the MLS or ACR- ANN CARR REALTORS®. The data relating to real estate for sale or lease on this web site comes in part from NTREIS. Real estate listings held by brokerage firms other than ACR- ANN CARR REALTORS® are marked with the NTREIS logo or an abbreviated logo and detailed information about them includes the name of the listing broker. Data last updated 2026-02-16T11:45:17.067.

Listing information © 2026 North Texas Real Estate Information System.